Автоматизированный электропривод
Здравствуйте, дорогие читатели! В данной статье вы узнаете, что такое автоматизированный электропривод. Специфика развития современной цивилизации, особенно в последние десять лет, кардинально меняет нашу жизнь. Наибольшего внимания заслуживают две тенденции.
- Первая – стремительное развитие всего, что связано с компьютерными технологиями. Это не только компьютер в каждом доме и на рабочем месте, не только интернет и «игрушки». Если вглядеться более пристально, то все мы уже давно заложники компьютерных технологий. Почти любое устройство сейчас имеет в своем составе управляющий чип, что в принципе, есть тот же маленький компьютер. Это и телевизор, и стиральная машина, и мобильный телефон, и фотоаппарат, и брелок к автомобилю, и сам автомобиль…
- Вторая тенденция – рост стоимости энергоносителей, и всего, что связано с добывающей промышленностью. За десять лет подорожали все ресурсы, да и в принципе дорожали всегда.
Это все имеет непосредственное значение к автоматизированному электроприводу, который интегрирован в нашу жизнь и является основой производства. Сейчас просто экономически целесообразно любой электропривод делать автоматизированным, то есть компьютеризированным. Это не есть дань времени, с непреодолимым желанием впихнуть во все микропроцессор. Самое главное – это сделать его способным существенно экономить электроэнергию. Автоматика, при таком подходе, окупается за год, а иногда и быстрее.
В дополнении к этому, автоматизированный электропривод имеет ряд существенных преимуществ:
- улучшенные потребительские качества (сравните хотя бы современную стиральную машину с той, которая была у вас двадцать лет назад)
- регулирование скорости, интенсивностей разгонов и торможений, позволяет упростить, то есть удешевить механическую часть, задавать щадящие режимы для всей механики, снизить пусковые и рабочие токи, продлить жизнь механической и электрической частей
- возможность и целесообразность делать распределенную систему управления электроприводом; — интеграция электроприводов в сеть с сервером сбора и анализа данных с возможностью удаленного доступа
А теперь давайте по порядку.
Многие ошибочно полагают что электропривод – это электродвигатель выполняющий какую-то работу. На самом деле это не совсем верно. В систему электропривода входит не только электродвигатель, но и редуктор, система управления к нему, датчики обратной связи, различные реле и пр. Это не электрическая система, а электромеханическая. Она может быть регулируемой (автоматизированной, автоматической или не автоматизированной) или не регулируемой.
Виды электроприводов
Не автоматизированный электропривод
При работе данного устройства все действия по регулированию каких-либо координат выполняются в ручном режиме. То есть для работы данного типа устройств необходим оператор, человек который будет следить за правильностью выполнения процессов. Как пример можно привести крановый электропривод, где все действия выполняются оператором.
Автоматизированный электропривод
В отличии от не автоматизированных приводов, в автоматизированных присутствуют сигналы обратной связи по координатам или параметрам (ток двигателя, скорость, положение, момент). Ниже приведена структурная схема:
Структурная схема автоматизированного электропривода
ЗА – защитная аппаратура (автоматические выключатели, предохранители и пр.)
ПЭЭ – преобразователь электрической энергии (частотник, тиристорный преобразователь)
ДТ – токовый датчик
ДН – датчик напряжения
СУ ПЭЭ – система управления преобразователем
ПУ – пульт управления
ПМ – передаточный механизм (муфта, редуктор и пр.)
РО – рабочий орган
ЭД — электродвигатель
При такой структуре управления СУ ПЭЭ управляет не только преобразователем, но и всей системой сразу. При таком управлении датчики обратной связи обеспечивают контроль за параметрами и сигнализируют об этом оператору. Данная система в автоматическом режиме может проводить некоторые операции (пуск, останов и пр.), но все равно требуется присутствие человека, для контроля, за работой данного устройства. Например, пуск много конвейерной линии, где пускаются не все конвейеры сразу, а по очереди, где учитывается также время пуска каждой линии и условия пуска. Точно также они и останавливаются.
Как видим из структурной схемы сигналы обратной связи приходят на пульт оператора, который непосредственно соблюдает технологический процесс, и часть приходит в систему управления преобразующим устройством для осуществления основных защит и отработки некоторых изменений задающего сигнала, поступающего с пульта управления.
Автоматический электропривод
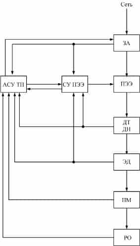
Для работы электропривода в автоматическом режиме не требуется присутствие человека. В данном случае все происходит автоматически. Ниже приведена структурная схема:

Структурная схема системы автоматического управления электроприводом
АСУ ТП – автоматическая система управления технологическим процессом
Как видим из структурной схемы что в АСУ ТП приходят все датчики обратной связи. В ней происходит обработка сигналов от датчиков, и выдаются управляющие сигналы для других подсистем. Данная структура управления очень удобна, так как не требует постоянного наблюдения оператора за технологическим процессом, и снижает влияние человеческого фактора. Например модернизированные шахтные подъемные машины, которые могут работать в автоматическом режиме ориентируясь по датчикам обратной связи
В современном мире активно внедряются АСУ ТП не только для электроприводов. Очень редко встречаются системы с ручным управлением технологическими процессами все они либо автоматизированные, либо на этих линиях полностью внедрены АСУ ТП.
Жизнь не стоит на месте. Производственные технологии стремительно развиваются. И мы должны четко сознавать, что краеугольным камнем в этих процессах является автоматизированный электропривод.
Видео
Будем рады, если подпишетесь на наш Блог!
[wysija_form id=»1″]











